長友ランディックビル 3階
物件概要
物件番号
130-00277-20物件名
長友ランディックビル所在地
- 東京都港区新橋3-1-11
- アクセスマップ
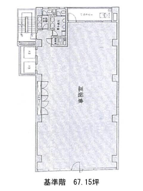
面積
67.15坪賃料(共益費含)
月額1,625,030円(24,200円/坪)
入居日
2026年4月上旬保証金
14,504,400円礼金
なし更新料
なし償却費
なし竣工
1991年2月構造
SRC規模
地上9階トイレ
男女別空調
個別空調エレベーター
有セキュリティ
有駐車場
無耐震
新耐震基準基準階天井高
2420mm空室延床面積
134.30坪情報更新日
2026/01/16長友ランディックビルのテナント募集中区画
| 階数 | 面積 | 賃料(共益費含む) | 保証金 | 入居可能日 | 検討リスト | 詳細 |
|---|---|---|---|---|---|---|
| 3 | 67.15坪 | 1,625,030円/月(24,200円/坪) | 1,450万円 | 2026年4月上旬 | ||
| 8 | 67.15坪 | 1,625,030円/月(24,200円/坪) | 1,450万円 | 即 |
…新着物件
アクセス
長友ランディックビルの物件情報
長友ランディックビル(港区新橋)は内幸町駅(A1番出口)から徒歩3分の賃貸オフィスです。外観は全体的に黒系を基調としており、前面がガラス張りになっているため、とても綺麗でスタイリッシュな印象があります。エントランスホールやエレベーターホールは清潔感があります。ビル内にはOAフロアが備えられており、トイレは男女別となっております。周辺にはコンビニや飲食店、郵便局などが複数あるためとても利便性が高いです。またビルの1階にもカフェが入っているため、休憩時などに活用しやすいでしょう。長友ランディックビルは内幸町駅(A1番出口)の他に新橋駅(日比谷口)徒歩6分、虎ノ門ヒルズ駅(B4番出口)徒歩7分で利用も可能です。

