3階 319は現在募集がありません
1フロア募集区画あり
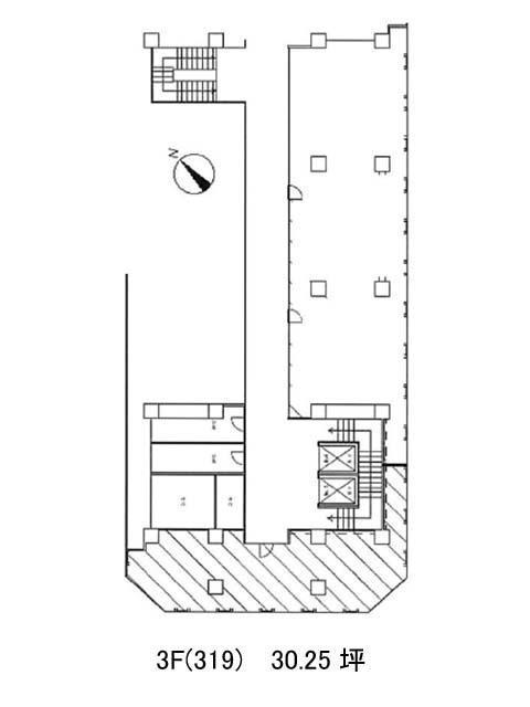
新橋駅前ビル1号館(オフィスユニオン汐留) 3階 319
物件概要
物件番号
130-00028-590物件名
新橋駅前ビル1号館(オフィスユニオン汐留)所在地
- 東京都港区新橋2-20-15
- アクセスマップ
面積
30.25坪賃料(共益費含)
−入居日
募集終了保証金
−礼金
−更新料
−償却費
−竣工
1966年8月構造
SRC規模
地上9階/地下5階トイレ
男女別空調
セントラル+個別空調エレベーター
有セキュリティ
駐車場
有耐震
旧耐震基準基準階天井高
2600mm空室延床面積
69.71坪情報更新日
2026/03/23新橋駅前ビル1号館(オフィスユニオン汐留)のテナント募集中区画
| 階数 | 面積 | 賃料(共益費含む) | 保証金 | 入居可能日 | 検討リスト | 詳細 |
|---|---|---|---|---|---|---|
| 8 | 69.71坪 | 1,456,939円/月(20,900円/坪) | 1,324万円 | 2026年5月上旬 |
…新着物件
新橋駅前ビル1号館(オフィスユニオン汐留)のアクセス
新橋駅前ビル1号館(オフィスユニオン汐留)の物件情報
新橋駅前ビル1号館(オフィスユニオン汐留)(港区新橋)は新橋駅(4番出口)から徒歩1分の賃貸オフィスです。何と言っても新橋駅前の立地が魅力の物件です。外回りなどが多い企業様にも利便性が高い環境かと思います。都営浅草線新橋駅と直結していますので、雨の日にも濡れることなくアクセスが可能です。
貸室は10坪未満~200坪まで様々なサイズの区画があり、多様なニーズに対応が出来るでしょう。
1階部分には多くの飲食店が営業中です。他のオフィスビルとはまた違った魅力のある物件ですよ。新橋駅前ビル1号館(オフィスユニオン汐留)は新橋駅(4番出口)の他に汐留駅(4番出口)徒歩5分、内幸町駅(A2番出口)徒歩7分で利用も可能です。

