5階は現在募集がありません
Tsao Hibiya 5階
物件概要
Tsao Hibiyaのテナント募集中区画
現在、空室がございません。
アクセス
Tsao Hibiyaの物件情報
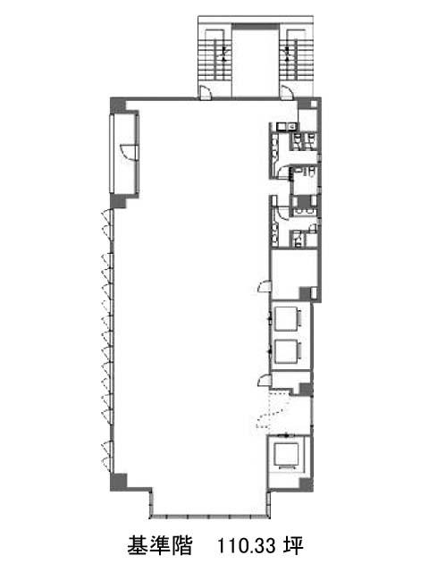
Tsao Hibiya(港区新橋)は内幸町駅(A1番出口)から徒歩4分の賃貸オフィスです。地上12階建てで竣工2017年の物件ということもあり、上層階からの眺望はとても良好で建物自体もとても綺麗です。外観は全体的にグレーを基調とした色合いで、一部ガラス張りになっているため、とてもデザイン性が高いです。エントランスホールやエレベーターホールはとても広々としており、清潔感と高級感があります。また周辺にはコンビニや飲食店などが複数あるため、ランチも楽しめるでしょう。ビル内にはOAフロアが備えられており、トイレは男女別となっております。Tsao Hibiyaは内幸町駅(A1番出口)の他に新橋駅(烏森口)徒歩6分、御成門駅(A4番出口)徒歩8分で利用も可能です。

