Tsao Hibiya 11階
物件概要
物件番号
130-00680-9物件名
Tsao Hibiya所在地
- 東京都港区新橋3-3-13
- アクセスマップ
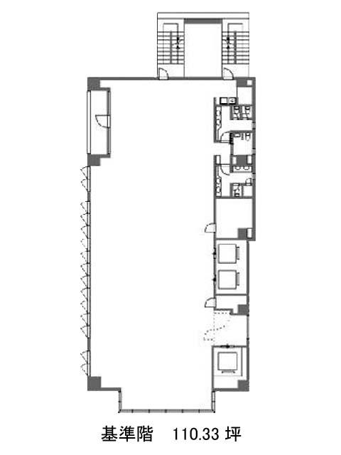
面積
110.33坪賃料(共益費含)
:応相談応相談
入居日
即保証金
応相談礼金
なし更新料
なし償却費
なし竣工
2017年11月構造
S造規模
地上12階/地下1階トイレ
男女別空調
個別空調エレベーター
有セキュリティ
有駐車場
有耐震
新耐震基準基準階天井高
2800mm空室延床面積
220.66坪情報更新日
2026/02/16Tsao Hibiyaのテナント募集中区画
| 階数 | 面積 | 賃料(共益費含む) | 保証金 | 入居可能日 | 検討リスト | 詳細 |
|---|---|---|---|---|---|---|
| 10 | 110.33坪 | 応相談(応相談) | 応相談 | 2026年9月上旬 | ||
| 11 | 110.33坪 | 応相談(応相談) | 応相談 | 即 |
…新着物件
Tsao Hibiyaのアクセス
Tsao Hibiyaの物件情報
Tsao Hibiya(港区新橋)は内幸町駅(A1番出口)から徒歩4分の賃貸オフィスです。地上12階建てで竣工2017年の物件ということもあり、上層階からの眺望はとても良好で建物自体もとても綺麗です。外観は全体的にグレーを基調とした色合いで、一部ガラス張りになっているため、とてもデザイン性が高いです。エントランスホールやエレベーターホールはとても広々としており、清潔感と高級感があります。また周辺にはコンビニや飲食店などが複数あるため、ランチも楽しめるでしょう。ビル内にはOAフロアが備えられており、トイレは男女別となっております。Tsao Hibiyaは内幸町駅(A1番出口)の他に新橋駅(烏森口)徒歩6分、御成門駅(A4番出口)徒歩8分で利用も可能です。

