新橋ユタカビル 2階
物件概要
物件番号
130-00075-20物件名
新橋ユタカビル所在地
- 東京都港区新橋5-14-3
- アクセスマップ
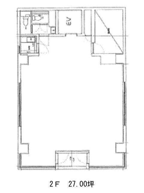
面積
27.00坪賃料(共益費含)
月額445,500円(16,500円/坪)
入居日
即保証金
3,240,000円礼金
1ケ月更新料
新1ケ月償却費
1ケ月竣工
1985年11月構造
SRC規模
地上9階トイレ
男女別空調
個別空調エレベーター
有セキュリティ
駐車場
無耐震
新耐震基準基準階天井高
空室延床面積
27.00坪情報更新日
2025/08/29新橋ユタカビルのテナント募集中区画
| 階数 | 面積 | 賃料(共益費含む) | 保証金 | 入居可能日 | 検討リスト | 詳細 |
|---|---|---|---|---|---|---|
| 2 | 27.00坪 | 445,500円/月(16,500円/坪) | 324万円 | 即 |
…新着物件
アクセス
新橋ユタカビルの物件情報
新橋ユタカビル(港区新橋)は新橋駅(A1番出口)から徒歩5分の賃貸オフィスです。新橋ユタカビルは新橋駅(A1番出口)の他に汐留駅(8番出口)徒歩5分、御成門駅(A4番出口)徒歩8分で利用も可能です。

