エンスイテ御成門ビル/enSUITE御成門ビル 1階
物件概要
物件番号
130-00753-2物件名
エンスイテ御成門ビル/enSUITE御成門ビル所在地
- 東京都港区新橋6-19-13
- アクセスマップ
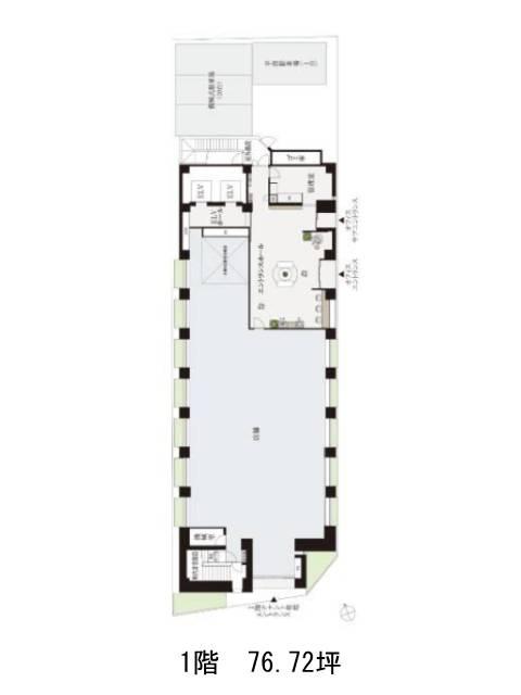
面積
76.72坪賃料(共益費含)
:応相談応相談
入居日
相談保証金
応相談礼金
なし更新料
なし償却費
なし竣工
1997年7月構造
SRC規模
地上9階トイレ
男女別空調
個別空調エレベーター
有セキュリティ
有駐車場
有耐震
新耐震基準基準階天井高
2560mm空室延床面積
531.76坪情報更新日
2026/01/21エンスイテ御成門ビル/enSUITE御成門ビルのテナント募集中区画
| 階数 | 面積 | 賃料(共益費含む) | 保証金 | 入居可能日 | 検討リスト | 詳細 |
|---|---|---|---|---|---|---|
| 1 | 76.72坪 | 応相談(応相談) | 応相談 | 相談 | ||
| 3 | 113.76坪 | 応相談(応相談) | 応相談 | 2026年4月上旬 | ||
| 4 | 113.76坪 | 応相談(応相談) | 応相談 | 2026年4月上旬 | ||
| 8 | 113.76坪 | 応相談(応相談) | 応相談 | 即 | ||
| 9 | 113.76坪 | 応相談(応相談) | 応相談 | 即 |
…新着物件
アクセス
エンスイテ御成門ビル/enSUITE御成門ビルの物件情報
エンスイテ御成門ビル/enSUITE御成門ビル(港区新橋)は御成門駅(A4番出口)から徒歩3分の賃貸オフィスです。都心エリアにありながらも静かな環境に位置し、働く人にとって落ち着いた時間が流れるロケーションが魅力。本物件の両サイドには建物がないため、“抜け感”のある開放的な立地です。
外観は石張りのファサードを基調に、スクエアな窓が整然と並ぶ洗練された佇まい。主張しすぎず、でもしっかり印象に残る、品のある存在感を放っています。
基準階は約114坪の整形フロアで、レイアウトのしやすさはもちろん、視線の抜ける外向きの窓面が広く、自然光もたっぷり確保できます。共用部には男女別トイレを完備し、来客対応や社内利用にも配慮された設計。EV2基、機械警備、駐車場付きと、オフィスビルに必要な機能はしっかり備えています。エンスイテ御成門ビル/enSUITE御成門ビルは御成門駅(A4番出口)の他に大門駅(A4番出口)徒歩7分、新橋駅(A1番出口)徒歩9分で利用も可能です。

