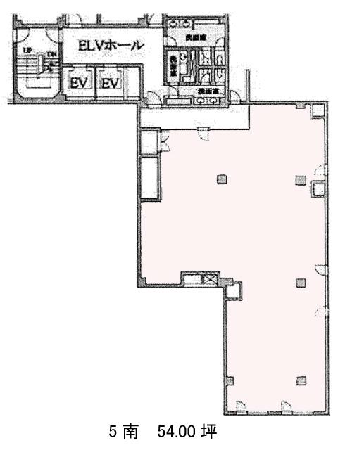
5階 5南は現在募集がありません
新橋アネックス 5階 5南
物件概要
新橋アネックスのテナント募集中区画
現在、空室がございません。
アクセス
新橋アネックスの物件情報
新橋アネックス(港区新橋)は御成門駅(A4番出口)から徒歩5分の賃貸オフィスです。茶色いレンガ貼りと欧風のデザインで温かみのある外観をしています。角地に建ち、特徴のある外観で視認性が高いビルですう。管理状態が良好で、築年数の割に清潔感のある共用部が保たれています。執務室外の男女別トイレ・非常階段2箇所・EV2基が備えられ、空調は個別式とセントラルの併用となっています。OAフロアで配線がしやすいでしょう。周辺はオフィスビルやマンション等、中低層の建物が建ち並び、都心でありながらも落ち着いた環境にあります。新橋アネックスは御成門駅(A4番出口)の他に新橋駅(A1番出口)徒歩9分、内幸町駅(A1番出口)徒歩9分で利用も可能です。

