赤レンガ通りビル 8階
物件概要
物件番号
130-00081-70物件名
赤レンガ通りビル所在地
- 東京都港区新橋3-7-4
- アクセスマップ
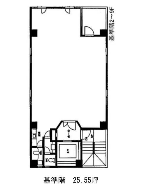
面積
25.55坪賃料(共益費含)
月額562,100円(22,000円/坪)
入居日
即保証金
5,110,000円礼金
なし更新料
新1ケ月償却費
1ケ月竣工
1991年9月構造
SRC規模
地上9階トイレ
男女別空調
個別空調エレベーター
有セキュリティ
有駐車場
無耐震
新耐震基準基準階天井高
2650mm空室延床面積
51.10坪情報更新日
2026/01/26赤レンガ通りビルのテナント募集中区画
| 階数 | 面積 | 賃料(共益費含む) | 保証金 | 入居可能日 | 検討リスト | 詳細 |
|---|---|---|---|---|---|---|
| 8 | 25.55坪 | 562,100円/月(22,000円/坪) | 511万円 | 即 | ||
| 9 | 25.55坪 | 562,100円/月(22,000円/坪) | 511万円 | 即 |
…新着物件
アクセス
赤レンガ通りビルの物件情報
赤レンガ通りビル(港区新橋)は新橋駅(烏森口)から徒歩5分の賃貸オフィスです。赤レンガ通りビルは新橋駅(烏森口)の他に内幸町駅(A1番出口)徒歩6分、汐留駅(出口2)徒歩9分で利用も可能です。

