1階は現在募集がありません
1フロア募集区画あり

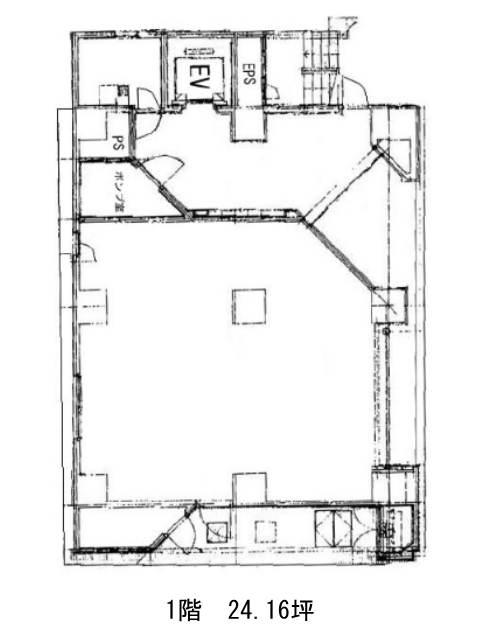
片山ビル 1階

前の写真 次の写真

物件概要

物件番号

130-00097-61

物件名

片山ビル

所在地

面積

24.16坪

賃料(共益費含)


入居日

募集終了

保証金

礼金

更新料

償却費

竣工

1982年7月

構造

SRC

規模

地上9階

トイレ

不明

空調

個別空調

エレベーター

セキュリティ

駐車場

耐震

新耐震基準

基準階天井高

空室延床面積

42.17坪

最寄駅

情報更新日

2026/01/08

片山ビルのテナント募集中区画

階数 面積 賃料(共益費含む) 保証金 入居可能日 検討リスト 詳細
6 42.17坪 765,385円/月(18,150円/坪) 417万円
…新着物件

片山ビルのアクセス

片山ビルの物件情報

片山ビル(港区新橋)は御成門駅(A4番出口)から徒歩5分の賃貸オフィスです。
ガラスとベージュのタイル張りで構成された外観は、大袈裟でなくとも素敵なデザインで築年数に関わらず洗練された印象を受けます。エントランスの植栽にもさり気ない心遣いが感じられます。
基準階は40坪強の規模。室内に柱がございますので、内見時などにご確認が必要かと思います。給湯スペースと男女別で使い勝手の良いトイレは室外に設置されています。
日比谷通りに面していることから、ビル前面は開放感があります。最寄りの御成門駅へも日比谷通りを直進するシンプルな道順ですので、アクセスしやすい環境です。
片山ビルは御成門駅(A4番出口)の他に内幸町駅(A1番出口)徒歩8分、新橋駅(A1番出口)徒歩9分で利用も可能です。

近隣のエリア・駅から探す