1階は現在募集がありません
1フロア募集区画あり

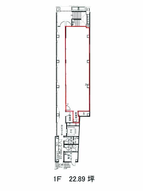
虎ノ門吉荒ビル 1階

前の写真 次の写真

物件概要

物件番号

131-00101-10

物件名

虎ノ門吉荒ビル

所在地

面積

22.89坪

賃料(共益費含)


入居日

募集終了

保証金

礼金

更新料

償却費

竣工

1987年8月

構造

S造

規模

地上9階/地下1階

トイレ

男女別

空調

個別空調

エレベーター

セキュリティ

駐車場

耐震

新耐震基準

基準階天井高

2400mm

空室延床面積

37.24坪

最寄駅

情報更新日

2025/11/17

虎ノ門吉荒ビルのテナント募集中区画

階数 面積 賃料(共益費含む) 保証金 入居可能日 検討リスト 詳細
4 37.24坪 応相談(応相談) 応相談 2025年12月上旬
…新着物件

アクセス

虎ノ門吉荒ビルの物件情報

虎ノ門吉荒ビル(港区西新橋)は虎ノ門駅(9番出口)から徒歩3分の賃貸オフィスです。
虎ノ門駅と内幸町駅の中間地点付近、外堀通り沿いの立地。交通利便性に大変優れていますので、外出が多い、もしくは来客が多い企業様には特におすすめです。物件は9階建て、ダークグレー一色の石造りの外観でスマートな印象を受けます。
基準となるフロアは40坪弱。間取りは細長い長方形の無柱空間で、フレキシブルなレイアウトが可能です。給湯スペースは室内の隅に設置済み。男女別トイレはエレベーターホール側(室外)に設けられており、使い勝手の良いオフィス環境を実現しています。
虎ノ門吉荒ビルは虎ノ門駅(9番出口)の他に内幸町駅(A4a番出口)徒歩4分、霞ケ関駅(C3番出口)徒歩5分で利用も可能です。

近隣のエリア・駅から探す