虎ノ門吉荒ビル 4階
物件概要
物件番号
131-00101-71物件名
虎ノ門吉荒ビル所在地
- 東京都港区西新橋1-6-13
- アクセスマップ
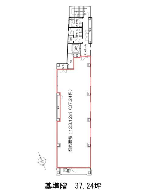
面積
37.24坪賃料(共益費含)
:応相談応相談
入居日
2025年12月上旬保証金
応相談礼金
なし更新料
なし償却費
なし竣工
1987年8月構造
S造規模
地上9階/地下1階トイレ
男女別空調
個別空調エレベーター
有セキュリティ
有駐車場
無耐震
新耐震基準基準階天井高
2400mm空室延床面積
37.24坪情報更新日
2025/11/17虎ノ門吉荒ビルのテナント募集中区画
| 階数 | 面積 | 賃料(共益費含む) | 保証金 | 入居可能日 | 検討リスト | 詳細 |
|---|---|---|---|---|---|---|
| 4 | 37.24坪 | 応相談(応相談) | 応相談 | 2025年12月上旬 |
…新着物件
アクセス
虎ノ門吉荒ビルの物件情報
虎ノ門吉荒ビル(港区西新橋)は虎ノ門駅(9番出口)から徒歩3分の賃貸オフィスです。虎ノ門駅と内幸町駅の中間地点付近、外堀通り沿いの立地。交通利便性に大変優れていますので、外出が多い、もしくは来客が多い企業様には特におすすめです。物件は9階建て、ダークグレー一色の石造りの外観でスマートな印象を受けます。
基準となるフロアは40坪弱。間取りは細長い長方形の無柱空間で、フレキシブルなレイアウトが可能です。給湯スペースは室内の隅に設置済み。男女別トイレはエレベーターホール側(室外)に設けられており、使い勝手の良いオフィス環境を実現しています。虎ノ門吉荒ビルは虎ノ門駅(9番出口)の他に内幸町駅(A4a番出口)徒歩4分、霞ケ関駅(C3番出口)徒歩5分で利用も可能です。

