2階は現在募集がありません
1フロア募集区画あり

SSビル 2階

前の写真 次の写真

物件概要

物件番号

131-00132-10

物件名

SSビル

所在地

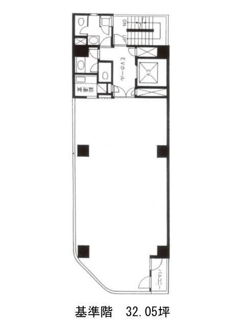
面積

32.05坪

賃料(共益費含)


入居日

募集終了

保証金

礼金

更新料

償却費

竣工

1989年11月

構造

SRC

規模

地上8階

トイレ

男女別

空調

個別空調

エレベーター

セキュリティ

駐車場

耐震

新耐震基準

基準階天井高

空室延床面積

30.41坪

最寄駅

情報更新日

2026/03/17

SSビルのテナント募集中区画

階数 面積 賃料(共益費含む) 保証金 入居可能日 検討リスト 詳細
7 30.41坪 568,667円/月(18,700円/坪) 273万円
…新着物件

SSビルのアクセス

SSビルの物件情報

SSビル(港区西新橋)は虎ノ門ヒルズ駅(B2番出口)から徒歩6分の賃貸オフィスです。
SSビルは虎ノ門ヒルズ駅(B2番出口)の他に御成門駅(A5番出口)徒歩8分、内幸町駅(A3番出口)徒歩8分で利用も可能です。

近隣のエリア・駅から探す