SSビルのテナント募集中区画
| 階数 | 面積 | 賃料(共益費含む) | 保証金 | 入居可能日 | 検討リスト | 詳細 |
|---|---|---|---|---|---|---|
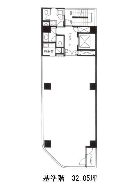
| 7 | 30.41坪 | 568,667円/月(18,700円/坪) | 273万円 | 即 |
…新着物件
SSビルのアクセス
SSビルの物件情報
SSビル(港区西新橋)は虎ノ門ヒルズ駅(B2番出口)から徒歩6分の賃貸オフィスです。SSビルは虎ノ門ヒルズ駅(B2番出口)の他に御成門駅(A5番出口)徒歩8分、内幸町駅(A3番出口)徒歩8分で利用も可能です。

