SSビル 7階
物件概要
物件番号
131-00132-50物件名
SSビル所在地
- 東京都港区西新橋3-4-2
- アクセスマップ
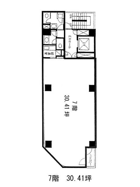
面積
30.41坪賃料(共益費含)
月額568,667円(18,700円/坪)
入居日
即保証金
2,736,900円礼金
なし更新料
新1ケ月償却費
2ケ月竣工
1989年11月構造
SRC規模
地上8階トイレ
男女別空調
個別空調エレベーター
有セキュリティ
有駐車場
無耐震
新耐震基準基準階天井高
空室延床面積
30.41坪情報更新日
2026/03/12SSビルのテナント募集中区画
| 階数 | 面積 | 賃料(共益費含む) | 保証金 | 入居可能日 | 検討リスト | 詳細 |
|---|---|---|---|---|---|---|
| 7 | 30.41坪 | 568,667円/月(18,700円/坪) | 273万円 | 即 |
…新着物件
SSビルのアクセス
SSビルの物件情報
SSビル(港区西新橋)は虎ノ門ヒルズ駅(B2番出口)から徒歩6分の賃貸オフィスです。SSビルは虎ノ門ヒルズ駅(B2番出口)の他に御成門駅(A5番出口)徒歩8分、内幸町駅(A3番出口)徒歩8分で利用も可能です。

