3階は現在募集がありません
1フロア募集区画あり

内幸町Iビル 3階

前の写真 次の写真

物件概要

物件番号

131-00055-30

物件名

内幸町Iビル

所在地

面積

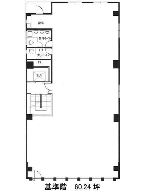
60.24坪

賃料(共益費含)


入居日

募集終了

保証金

礼金

更新料

償却費

竣工

1972年9月

構造

S造

規模

地上10階

トイレ

男女別

空調

個別空調

エレベーター

セキュリティ

駐車場

耐震

耐震補強済み

基準階天井高

空室延床面積

60.30坪

最寄駅

情報更新日

2026/03/31

内幸町Iビルのテナント募集中区画

階数 面積 賃料(共益費含む) 保証金 入居可能日 検討リスト 詳細
9 60.30坪 応相談(応相談) 応相談
…新着物件

内幸町Iビルのアクセス

内幸町Iビルの物件情報

内幸町Iビル(港区西新橋)は内幸町駅(A4a番出口)から徒歩3分の賃貸オフィスです。
地上10階建ての物件ということもあり、上層階からの眺望は良好です。外観は全体的に白を基調とした色合いで、とてもスタイリッシュな印象があります。基準階は約60坪あり、室内はほぼ長方形の形をしているため、比較的レイアウトは組みやすいでしょう。ビル内にはOAフロアが備えられており、トイレは男女別となっております。周辺にはコンビニや飲食店、郵便局、銀行などがあるためとても利便性が高いです。
内幸町Iビルは内幸町駅(A4a番出口)の他に虎ノ門駅(9番出口)徒歩4分、霞ケ関駅(C3番出口)徒歩5分で利用も可能です。

近隣のエリア・駅から探す