2階は現在募集がありません
1フロア募集区画あり
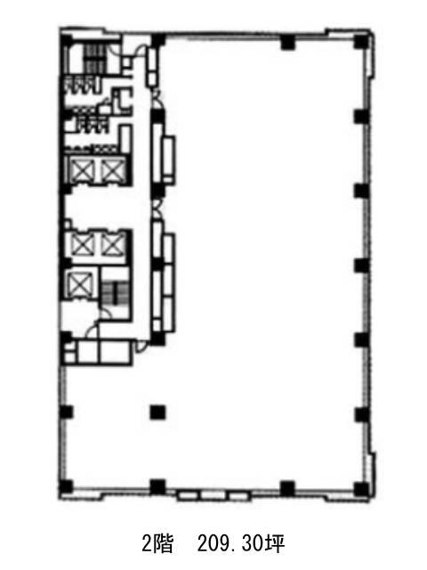
赤坂1丁目センタービル 2階
物件概要
物件番号
133-00117-20物件名
赤坂1丁目センタービル所在地
- 東京都港区赤坂1-11-30
- アクセスマップ
面積
209.30坪賃料(共益費含)
−入居日
募集終了保証金
−礼金
−更新料
−償却費
−竣工
1988年11月構造
規模
地上14階/地下2階トイレ
男女別空調
セントラルエレベーター
有セキュリティ
駐車場
有耐震
新耐震基準基準階天井高
2500mm空室延床面積
246.20坪情報更新日
2026/03/03赤坂1丁目センタービルのテナント募集中区画
| 階数 | 面積 | 賃料(共益費含む) | 保証金 | 入居可能日 | 検討リスト | 詳細 |
|---|---|---|---|---|---|---|
| 11 | 246.20坪 | 応相談(応相談) | 応相談 | 2026年9月 |
…新着物件
赤坂1丁目センタービルのアクセス
赤坂1丁目センタービルの物件情報
赤坂1丁目センタービル(港区赤坂)は溜池山王駅(13番出口)から徒歩1分の賃貸オフィスです。地上14階建ての物件ということもあり、上層階からの眺望はとても良好です。メタリックなパネル張りの外観で、エントランスを支える丸く大きな柱が印象的です。建物自体が大きいため圧倒的存在感があります。エントランスホールやエレベーターホールは広々としており、ホテルのような高級感を感じられます。ビルの1階にはコンビニが入っているため、休憩時などに活用しやすいでしょう。ビル内にはOAフロアが備えられており、貸室の外に設置されたトイレは男女別となっております。駐車場もあるため、社用車を使う場合も便利です。赤坂1丁目センタービルは溜池山王駅(13番出口)の他に六本木一丁目駅(3番出口)徒歩5分、国会議事堂前駅(5番出口)徒歩7分で利用も可能です。

