5階は現在募集がありません
3フロア募集区画あり

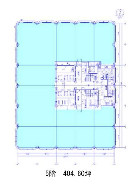
赤坂溜池タワー 5階

前の写真 次の写真

物件概要

物件番号

133-00126-70

物件名

赤坂溜池タワー

所在地

面積

404.60坪

賃料(共益費含)


入居日

募集終了

保証金

礼金

更新料

償却費

竣工

2000年9月

構造

規模

地上25階/地下2階

トイレ

男女別

空調

セントラル

エレベーター

セキュリティ

駐車場

耐震

新耐震基準

基準階天井高

2800mm

空室延床面積

979.70坪

最寄駅

情報更新日

2026/05/07

赤坂溜池タワーのテナント募集中区画

階数 面積 賃料(共益費含む) 保証金 入居可能日 検討リスト 詳細
2 172.70坪 応相談(応相談) 応相談 2026年8月上旬
3 404.60坪 応相談(応相談) 応相談
13 402.40坪 応相談(応相談) 応相談 2026年9月上旬
…新着物件

赤坂溜池タワーのアクセス

赤坂溜池タワーの物件情報

赤坂溜池タワー(港区赤坂)は溜池山王駅(11番出口)から徒歩4分の賃貸オフィスです。
2000年竣工、地上25階地下2階建のビルです。EV7基・大型駐車場・男女別トイレ・OAフロアといった設備仕様をしています。正方形のフロアは一部分に共用部が集中しており、効率良く利用できる間取りになっております。四面採光で明るい室内になるでしょう。吹抜けの広々としたエントランスはソファーが置かれ、来客時の待ち合わせとして良いでしょう。EVホール等の共用部も広々として高級感があり、大規模物件ならではのスペックをもちます。
赤坂溜池タワーは溜池山王駅(11番出口)の他に赤坂駅(2番出口)徒歩6分、国会議事堂前駅(5番出口)徒歩8分で利用も可能です。

近隣のエリア・駅から探す