6階 601は現在募集がありません
赤坂榎坂ビル 6階 601
物件概要
赤坂榎坂ビルのテナント募集中区画
現在、空室がございません。
赤坂榎坂ビルのアクセス
赤坂榎坂ビルの物件情報
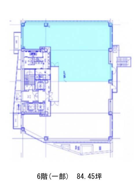
赤坂榎坂ビル(港区赤坂)は溜池山王駅(14番出口)から徒歩1分の賃貸オフィスです。ミラーガラスが輝く地上11階地下2階建ビルです。面積は80坪台や170坪台とバリエーション豊富で、多様なニーズに対応できるでしょう。共用部がフロアの一部に集中しており、長方形のすっきりした間取りとなります。2800㎜の高い天井と大きなガラス窓からの採光で開放感のある室内となるでしょう。3基のEV・駐車場27台分・セントラル空調・男女別トイレといった共用部があります。屋上のルーフガーデンはリフレッシュにご利用頂けます。赤坂榎坂ビルは溜池山王駅(14番出口)の他に六本木一丁目駅(3番出口)徒歩6分、国会議事堂前駅(5番出口)徒歩7分で利用も可能です。

