オーク赤坂ビル 1階
物件概要
物件番号
133-00170-90物件名
オーク赤坂ビル所在地
- 東京都港区赤坂7-1-16
- アクセスマップ
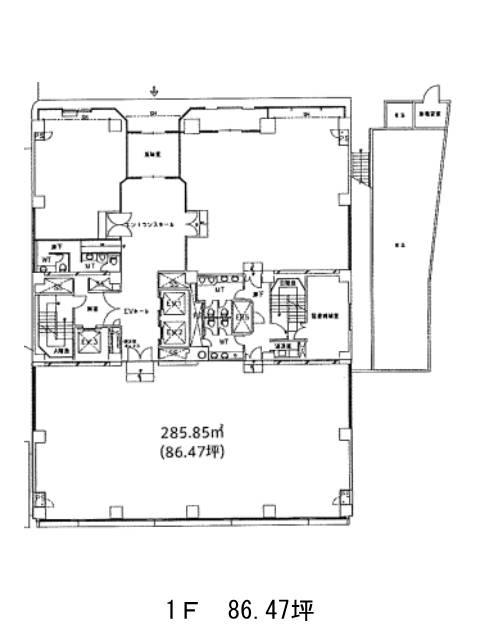
面積
86.36坪賃料(共益費含)
:応相談応相談
入居日
即保証金
応相談礼金
なし更新料
なし償却費
なし竣工
1979年9月構造
SRC規模
地上11階/地下2階トイレ
男女別空調
セントラル+個別空調エレベーター
有セキュリティ
有駐車場
有耐震
旧耐震基準基準階天井高
2450mm空室延床面積
544.09坪情報更新日
2026/03/03オーク赤坂ビルのテナント募集中区画
| 階数 | 面積 | 賃料(共益費含む) | 保証金 | 入居可能日 | 検討リスト | 詳細 |
|---|---|---|---|---|---|---|
| 1 | 86.36坪 | 応相談(応相談) | 応相談 | 即 | ||
| 6 | 91.36坪 | 応相談(応相談) | 応相談 | 2026年8月上旬 | ||
| 7 | 91.28坪 | 応相談(応相談) | 応相談 | 即 | ||
| 7 | 91.28坪 | 応相談(応相談) | 応相談 | 即 | ||
| 9 | 183.81坪 | 応相談(応相談) | 応相談 | 2026年8月上旬 |
…新着物件
オーク赤坂ビルのアクセス
オーク赤坂ビルの物件情報
オーク赤坂ビル(港区赤坂)は青山一丁目駅(4番出口)から徒歩7分の賃貸オフィスです。1979年竣工の地上11階建ての物件です。2004年にはリニューアル工事を実施。外観は全体的に白系の色合いをしており、とてもシンプルなデザインとなっております。基準階面積は約180坪。ビル内にはOAフロアが備えられており、トイレは男女別となっております。また駐車場も完備しており、セキュリティは機械警備を導入しているため、安心です。周辺にはコンビニや飲食店などが複数あるため、ランチも楽しめるでしょう。またビルの1階にもコンビニが入っているため、休憩時などに活用しやすいです。オーク赤坂ビルは青山一丁目駅(4番出口)の他に赤坂見附駅(出口4)徒歩10分、永田町駅(7番出口)徒歩11分で利用も可能です。

