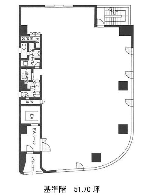
アトム青山タワーのテナント募集中区画
| 階数 | 面積 | 賃料(共益費含む) | 保証金 | 入居可能日 | 検討リスト | 詳細 |
|---|---|---|---|---|---|---|
| 6 | 51.70坪 | 応相談(応相談) | 応相談 | 2026年3月上旬 | ||
| 9 | 51.70坪 | 応相談(応相談) | 応相談 | 2026年3月上旬 |
…新着物件
アクセス
アトム青山タワーの物件情報
アトム青山タワー(港区赤坂)は青山一丁目駅(4番出口)から徒歩7分の賃貸オフィスです。アトム青山タワーは青山一丁目駅(4番出口)の他に赤坂見附駅(出口4)徒歩11分、永田町駅(7番出口)徒歩12分で利用も可能です。

