8階は現在募集がありません
2フロア募集区画あり

アトム青山タワー 8階

前の写真 次の写真

物件概要

物件番号

133-00296-80

物件名

アトム青山タワー

所在地

面積

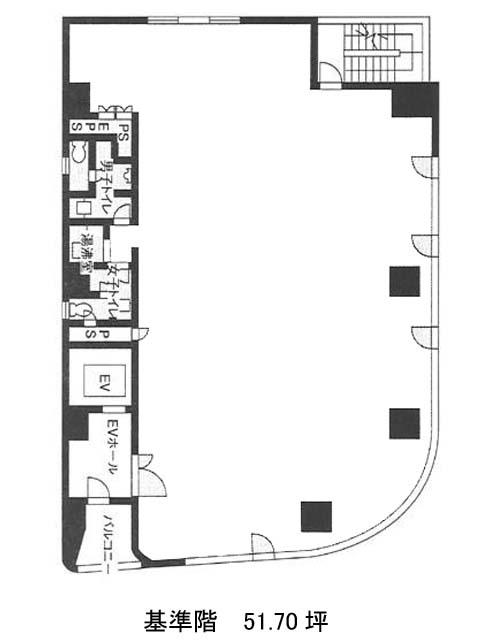
51.70坪

賃料(共益費含)


入居日

募集終了

保証金

礼金

更新料

償却費

竣工

1988年3月

構造

SRC

規模

地上9階/地下1階

トイレ

男女別

空調

個別空調

エレベーター

セキュリティ

駐車場

耐震

新耐震基準

基準階天井高

2400mm

空室延床面積

103.40坪

最寄駅

情報更新日

2026/01/07

アトム青山タワーのテナント募集中区画

階数 面積 賃料(共益費含む) 保証金 入居可能日 検討リスト 詳細
6 51.70坪 応相談(応相談) 応相談 2026年3月上旬
9 51.70坪 応相談(応相談) 応相談 2026年3月上旬
…新着物件

アクセス

アトム青山タワーの物件情報

アトム青山タワー(港区赤坂)は青山一丁目駅(4番出口)から徒歩7分の賃貸オフィスです。
アトム青山タワーは青山一丁目駅(4番出口)の他に赤坂見附駅(出口4)徒歩11分、永田町駅(7番出口)徒歩12分で利用も可能です。

近隣のエリア・駅から探す