アトム青山タワー 9階
物件概要
物件番号
133-00296-90物件名
アトム青山タワー所在地
- 東京都港区赤坂7-1-15
- アクセスマップ
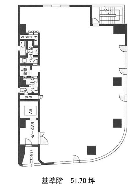
面積
51.70坪賃料(共益費含)
:応相談応相談
入居日
2026年3月上旬保証金
応相談礼金
なし更新料
なし償却費
なし竣工
1988年3月構造
SRC規模
地上9階/地下1階トイレ
男女別空調
個別空調エレベーター
有セキュリティ
有駐車場
有耐震
新耐震基準基準階天井高
2400mm空室延床面積
103.40坪情報更新日
2026/01/07アトム青山タワーのテナント募集中区画
| 階数 | 面積 | 賃料(共益費含む) | 保証金 | 入居可能日 | 検討リスト | 詳細 |
|---|---|---|---|---|---|---|
| 6 | 51.70坪 | 応相談(応相談) | 応相談 | 2026年3月上旬 | ||
| 9 | 51.70坪 | 応相談(応相談) | 応相談 | 2026年3月上旬 |
…新着物件
アクセス
アトム青山タワーの物件情報
アトム青山タワー(港区赤坂)は青山一丁目駅(4番出口)から徒歩7分の賃貸オフィスです。アトム青山タワーは青山一丁目駅(4番出口)の他に赤坂見附駅(出口4)徒歩11分、永田町駅(7番出口)徒歩12分で利用も可能です。

