福吉坂ビルのテナント募集中区画
| 階数 | 面積 | 賃料(共益費含む) | 保証金 | 入居可能日 | 検討リスト | 詳細 |
|---|---|---|---|---|---|---|
| 1 | 53.48坪 | 応相談(応相談) | 応相談 | 2026年8月上旬 |
…新着物件
福吉坂ビルのアクセス
福吉坂ビルの物件情報
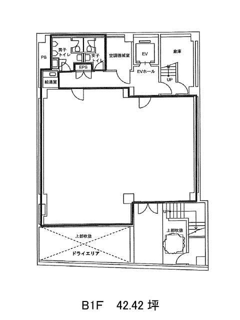
福吉坂ビル(港区赤坂)は溜池山王駅(12番出口)から徒歩5分の賃貸オフィスです。1987年竣工の地上4階地下1階建ビルです。閑静な坂の途中に建ち、近隣には樹木が生い茂っています。間取りは整形で支柱が中央に無く、レイアウト効率が良いでしょう。4階建ですがEVがあり、男女別トイレ・個別空調を備えます。床は配線の自由度が高まるOAフロアを導入しています。周辺は、ホテル・議員宿舎・オフィスビルが多く建ち並び高級感ある街並みが続きます。飲食店が充実しており、昼・夜と多様なジャンルをお楽しみ頂けるでしょう。福吉坂ビルは溜池山王駅(12番出口)の他に赤坂駅(5a番出口)徒歩6分、六本木一丁目駅(3番出口)徒歩7分で利用も可能です。

