7階は現在募集がありません
赤坂マカベビル 7階
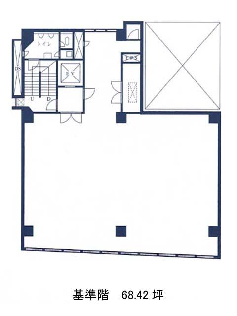
物件概要
赤坂マカベビルのテナント募集中区画
現在、空室がございません。
アクセス
赤坂マカベビルの物件情報
赤坂マカベビル(港区赤坂)は赤坂見附駅(11番出口)から徒歩3分の賃貸オフィスです。ブラウンの色味をしたガラス張りをした、地上9階地下1階建ビルです。1974年竣工ですが、1992年のリニューアルを経て外観・内装共に清潔感があります。2014年に耐震補強が済んでおり、新耐震基準を満たしております。共用部は六角形のタイルを用い、デザイン性のある内装をしています。EV1基・駐車場・男女別トイレ・個別空調といった設備仕様です。セキュリティとして機械警備に加え有人警備があり安心感があるでしょう。オフィスは24時間利用可能です。赤坂マカベビルは赤坂見附駅(11番出口)の他に赤坂駅(2番出口)徒歩4分、溜池山王駅(5番出口)徒歩5分で利用も可能です。

