NBF赤坂山王スクエアのテナント募集中区画
| 階数 | 面積 | 賃料(共益費含む) | 保証金 | 入居可能日 | 検討リスト | 詳細 |
|---|---|---|---|---|---|---|
| 5 | 212.47坪 | 応相談(応相談) | 応相談 | 2026年4月上旬 | ||
| 6 | 212.47坪 | 応相談(応相談) | 応相談 | 2026年4月上旬 |
…新着物件
アクセス
NBF赤坂山王スクエアの物件情報
NBF赤坂山王スクエア(港区赤坂)は溜池山王駅(9番出口)から徒歩2分の賃貸オフィスです。溜池交差点に面し、デザイン性の高い外観が目を引きます。間口が広く、角地に立地するため視認性や存在感も申し分なし。企業のプレゼンス向上にも効果的でしょう。
エントランスに足を踏み入れると、天井高とガラス面から差し込む自然光が印象的。エレベーターホールにも陽が届き、訪れる方の記憶に残りそうです。
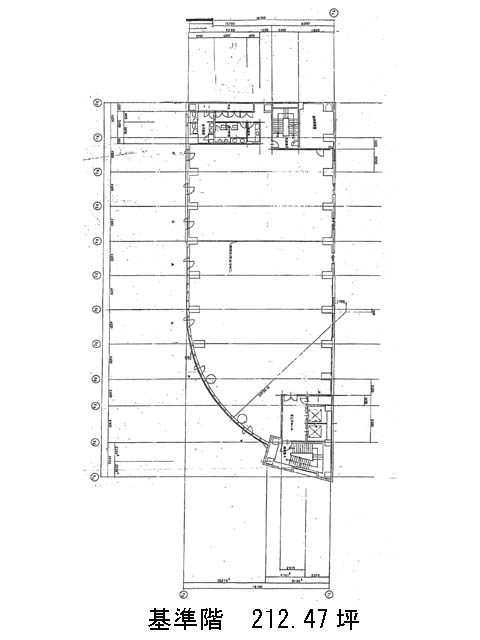
基準階は212坪超のゆとりある空間で、一部が弧を描く特徴的な形状ながら、柱は外周にまとめられており、OAフロア完備で効率的なレイアウトが可能。水回りも室内奥に集約されているため、動線もスマートです。
建物内には駐車場も併設されており、車利用が多い企業にもフィットするでしょう。NBF赤坂山王スクエアは溜池山王駅(9番出口)の他に国会議事堂前駅(5番出口)徒歩4分、虎ノ門駅(11番出口)徒歩8分で利用も可能です。

