Daiwa赤坂ビルのテナント募集中区画
| 階数 | 面積 | 賃料(共益費含む) | 保証金 | 入居可能日 | 検討リスト | 詳細 |
|---|---|---|---|---|---|---|
| 4 | 70.47坪 | 応相談(応相談) | 応相談 | 2026年5月上旬 |
…新着物件
Daiwa赤坂ビルのアクセス
Daiwa赤坂ビルの物件情報
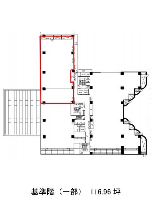
Daiwa赤坂ビル(港区赤坂)は赤坂駅(2番出口)から徒歩4分の賃貸オフィスです。2011年にリニューアル工事を完了したこちらの物件は、ブラウンの横ラインが階段状に複数の層を形成する、とてもデザイン性が高く、視認性も抜群です。エントランスホールやエレベーターホールは広々としており、開放感と清潔感があります。貸室の間取りは区画ごとに異なります。ビル内にはOAフロア、共用部の男女別トイレが備えられています。駐車場もあるため、社用車を使う場合も便利です。また周辺にはコンビニや飲食店、郵便局などが複数あるためとても利便性が高いです。Daiwa赤坂ビルは赤坂駅(2番出口)の他に溜池山王駅(10番出口)徒歩6分、赤坂見附駅(出口1)徒歩7分で利用も可能です。

