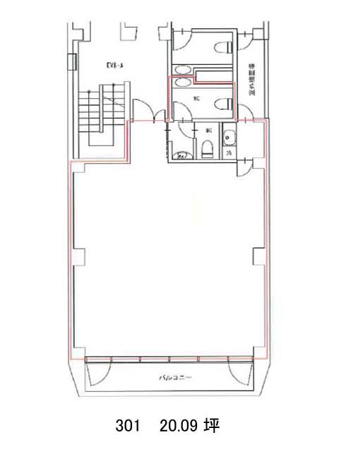
溜池山王葵ビルのテナント募集中区画
| 階数 | 面積 | 賃料(共益費含む) | 保証金 | 入居可能日 | 検討リスト | 詳細 |
|---|---|---|---|---|---|---|
| 1 | 39.68坪 | 1,309,718円/月(33,007円/坪) | 357万円 | 即 |
…新着物件
アクセス
溜池山王葵ビルの物件情報
溜池山王葵ビル(港区赤坂)は溜池山王駅(11番出口)から徒歩2分の賃貸オフィスです。
溜池山王葵ビルは溜池山王駅(11番出口)の他に赤坂駅(2番出口)徒歩6分、国会議事堂前駅(5番出口)徒歩6分で利用も可能です。

