5階は現在募集がありません
3フロア募集区画あり

FORUM赤坂 5階

前の写真 次の写真

物件概要

物件番号

133-00864-70

物件名

FORUM赤坂

所在地

面積

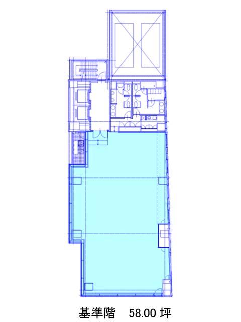
58.00坪

賃料(共益費含)


入居日

募集終了

保証金

礼金

更新料

償却費

竣工

1991年3月

構造

SRC

規模

地上11階/地下1階

トイレ

男女別

空調

個別空調

エレベーター

セキュリティ

駐車場

耐震

新耐震基準

基準階天井高

2450mm

空室延床面積

174.00坪

最寄駅

情報更新日

2026/04/06

FORUM赤坂のテナント募集中区画

階数 面積 賃料(共益費含む) 保証金 入居可能日 検討リスト 詳細
3 58.00坪 1,340,564円/月(23,113円/坪) 1,218万円
6 58.00坪 1,340,564円/月(23,113円/坪) 1,218万円
7 58.00坪 1,340,564円/月(23,113円/坪) 1,218万円 相談
…新着物件

FORUM赤坂のアクセス

FORUM赤坂の物件情報

FORUM赤坂(港区赤坂)は溜池山王駅(12番出口)から徒歩3分の賃貸オフィスです。
地上11階、地下1階建ての1991年竣工の物件です。外観は全体的にガラス張りになっており、とても綺麗でスタイリッシュな印象があります。エントランスホールやエレベーターホールは清潔感があり、落ち着いた空間となっております。また周辺にはコンビニや飲食店などがあるため、ランチを楽しむことも出来るでしょう。ビル内のトイレは男女別となっており、駐車場も完備されております。基準階は約58坪あり、室内はほぼ長方形の形をしているため、比較的レイアウトは組みやすいでしょう。
FORUM赤坂は溜池山王駅(12番出口)の他に六本木一丁目駅(3番出口)徒歩5分、赤坂駅(5a番出口)徒歩8分で利用も可能です。

近隣のエリア・駅から探す