FORUM赤坂 7階
物件概要
物件番号
133-00864-90物件名
FORUM赤坂所在地
- 東京都港区赤坂2-19-4
- アクセスマップ
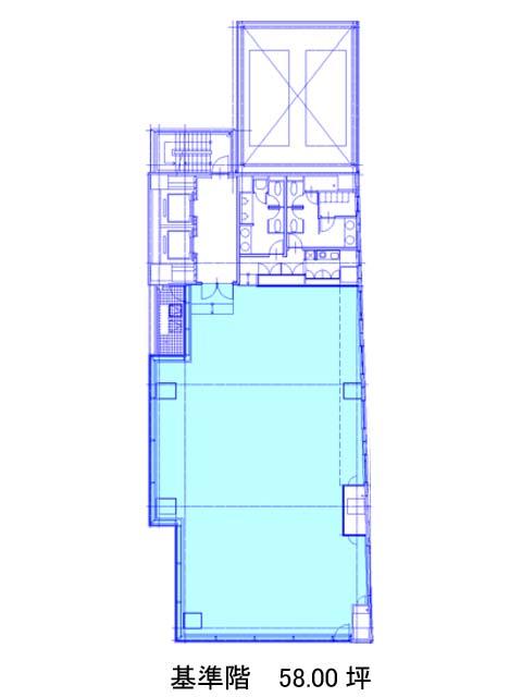
面積
58.00坪賃料(共益費含)
月額1,340,564円(23,113円/坪)
入居日
相談保証金
12,186,960円礼金
なし更新料
なし償却費
なし竣工
1991年3月構造
SRC規模
地上11階/地下1階トイレ
男女別空調
個別空調エレベーター
有セキュリティ
駐車場
有耐震
新耐震基準基準階天井高
2450mm空室延床面積
174.00坪情報更新日
2026/04/06FORUM赤坂のテナント募集中区画
| 階数 | 面積 | 賃料(共益費含む) | 保証金 | 入居可能日 | 検討リスト | 詳細 |
|---|---|---|---|---|---|---|
| 3 | 58.00坪 | 1,340,564円/月(23,113円/坪) | 1,218万円 | 即 | ||
| 6 | 58.00坪 | 1,340,564円/月(23,113円/坪) | 1,218万円 | 即 | ||
| 7 | 58.00坪 | 1,340,564円/月(23,113円/坪) | 1,218万円 | 相談 |
…新着物件
FORUM赤坂のアクセス
FORUM赤坂の物件情報
FORUM赤坂(港区赤坂)は溜池山王駅(12番出口)から徒歩3分の賃貸オフィスです。地上11階、地下1階建ての1991年竣工の物件です。外観は全体的にガラス張りになっており、とても綺麗でスタイリッシュな印象があります。エントランスホールやエレベーターホールは清潔感があり、落ち着いた空間となっております。また周辺にはコンビニや飲食店などがあるため、ランチを楽しむことも出来るでしょう。ビル内のトイレは男女別となっており、駐車場も完備されております。基準階は約58坪あり、室内はほぼ長方形の形をしているため、比較的レイアウトは組みやすいでしょう。FORUM赤坂は溜池山王駅(12番出口)の他に六本木一丁目駅(3番出口)徒歩5分、赤坂駅(5a番出口)徒歩8分で利用も可能です。

