赤坂中西ビル別館のテナント募集中区画
| 階数 | 面積 | 賃料(共益費含む) | 保証金 | 入居可能日 | 検討リスト | 詳細 |
|---|---|---|---|---|---|---|
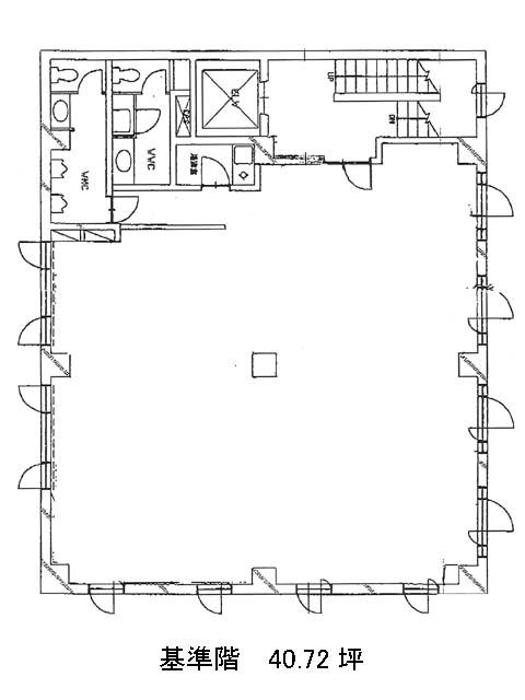
| 2 | 40.72坪 | 応相談(応相談) | 応相談 | 相談 |
…新着物件
アクセス
赤坂中西ビル別館の物件情報
赤坂中西ビル別館(港区赤坂)は赤坂見附駅(A番出口)から徒歩3分の賃貸オフィスです。地上3階建ての1991年竣工、鉄骨鉄筋コンクリート構造のビルです。建物の周りは、植栽が整えられてり高級感があります。エントランスやエレベーターホールはとても落ち着いた空間となっております。基準階は約40坪あり、室内はほぼ正方形の形をしているため、効率の良いレイアウトが組めそうです。貸室内にはOAフロアが備えられており、トイレは男女別となっております。また周辺にはコンビニや飲食店、郵便局などがあるためとても利便性が高いです。赤坂中西ビル別館は赤坂見附駅(A番出口)の他に永田町駅(8番出口)徒歩5分、赤坂駅(1番出口)徒歩7分で利用も可能です。

