4階は現在募集がありません
赤坂日ノ樹ビル 4階
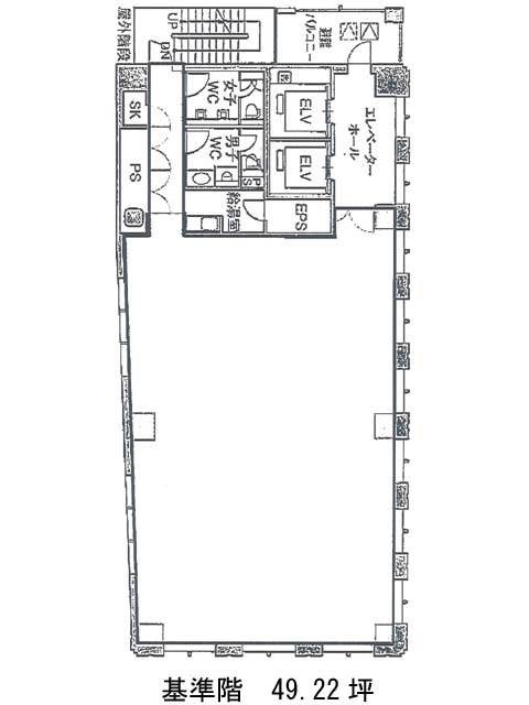
物件概要
赤坂日ノ樹ビルのテナント募集中区画
現在、空室がございません。
アクセス
赤坂日ノ樹ビルの物件情報
赤坂日ノ樹ビル(港区赤坂)は溜池山王駅(9番出口)から徒歩2分の賃貸オフィスです。2009年竣工の物件ということもあり、建物自体が比較的綺麗です。外観は明るい茶系の色合いで、外壁も窓も縦ラインが強調されたお洒落なデザインです。エントランスホールやエレベーターホールは高級感を感じられます。ビル内にはOAフロアが備えられており、駐車場もあるため、社用車を使う場合も便利です。セキュリティは機械警備を導入しており、耐震性も新耐震基準であるため、安心です。建物の並びには郵便局があり、周辺にはコンビニや飲食店、銀行などが複数あるためとても利便性が高いです。赤坂日ノ樹ビルは溜池山王駅(9番出口)の他に国会議事堂前駅(5番出口)徒歩6分、六本木一丁目駅(3番出口)徒歩8分で利用も可能です。

