4階は現在募集がありません

赤坂日ノ樹ビル 4階

前の写真 次の写真

物件概要

物件番号

133-00896-81

物件名

赤坂日ノ樹ビル

所在地

面積

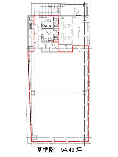
54.49坪

賃料(共益費含)


入居日

募集終了

保証金

礼金

更新料

償却費

竣工

2009年10月

構造

S造

規模

地上9階

トイレ

男女別

空調

個別空調

エレベーター

セキュリティ

駐車場

耐震

新耐震基準

基準階天井高

2800mm

空室延床面積

最寄駅

情報更新日

2024/10/03

赤坂日ノ樹ビルのテナント募集中区画

現在、空室がございません。

アクセス

赤坂日ノ樹ビルの物件情報

赤坂日ノ樹ビル(港区赤坂)は溜池山王駅(9番出口)から徒歩2分の賃貸オフィスです。
2009年竣工の物件ということもあり、建物自体が比較的綺麗です。外観は明るい茶系の色合いで、外壁も窓も縦ラインが強調されたお洒落なデザインです。エントランスホールやエレベーターホールは高級感を感じられます。ビル内にはOAフロアが備えられており、駐車場もあるため、社用車を使う場合も便利です。セキュリティは機械警備を導入しており、耐震性も新耐震基準であるため、安心です。建物の並びには郵便局があり、周辺にはコンビニや飲食店、銀行などが複数あるためとても利便性が高いです。
赤坂日ノ樹ビルは溜池山王駅(9番出口)の他に国会議事堂前駅(5番出口)徒歩6分、六本木一丁目駅(3番出口)徒歩8分で利用も可能です。

近隣のエリア・駅から探す