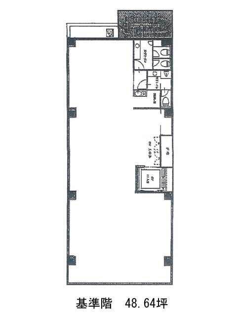
4階は現在募集がありません
HATビル 4階
物件概要
HATビルのテナント募集中区画
現在、空室がございません。
HATビルのアクセス
HATビルの物件情報
HATビル(港区赤坂)は赤坂駅(7番出口)から徒歩1分の賃貸オフィスです。HATビルは赤坂駅(7番出口)の他に溜池山王駅(7番出口)徒歩8分、赤坂見附駅(出口1)徒歩8分で利用も可能です。

