HATビルのテナント募集中区画
| 階数 | 面積 | 賃料(共益費含む) | 保証金 | 入居可能日 | 検討リスト | 詳細 |
|---|---|---|---|---|---|---|
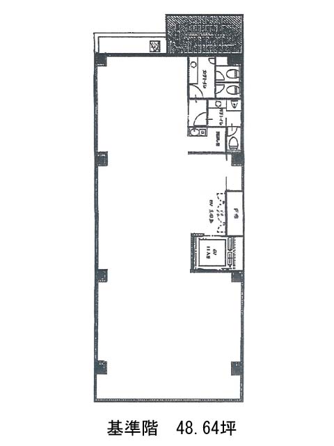
| 8 | 48.64坪 | 1,268,312円/月(26,075円/坪) | 972万円 | 即 |
…新着物件
アクセス
HATビルの物件情報
HATビル(港区赤坂)は赤坂駅(7番出口)から徒歩1分の賃貸オフィスです。HATビルは赤坂駅(7番出口)の他に溜池山王駅(7番出口)徒歩8分、赤坂見附駅(出口1)徒歩8分で利用も可能です。

