HATビル 8階
物件概要
物件番号
133-00955-61物件名
HATビル所在地
- 東京都港区赤坂6-3-20
- アクセスマップ
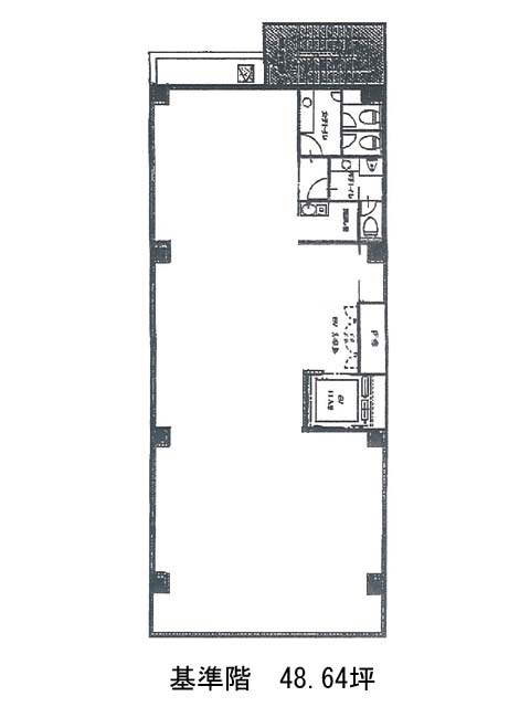
面積
48.64坪賃料(共益費含)
月額1,268,312円(26,075円/坪)
入居日
即保証金
9,728,000円礼金
なし更新料
新1ケ月償却費
10%竣工
2010年9月構造
S造規模
地上9階トイレ
男女別空調
個別空調エレベーター
有セキュリティ
駐車場
無耐震
新耐震基準基準階天井高
空室延床面積
48.64坪情報更新日
2025/12/02HATビルのテナント募集中区画
| 階数 | 面積 | 賃料(共益費含む) | 保証金 | 入居可能日 | 検討リスト | 詳細 |
|---|---|---|---|---|---|---|
| 8 | 48.64坪 | 1,268,312円/月(26,075円/坪) | 972万円 | 即 |
…新着物件
アクセス
HATビルの物件情報
HATビル(港区赤坂)は赤坂駅(7番出口)から徒歩1分の賃貸オフィスです。HATビルは赤坂駅(7番出口)の他に溜池山王駅(7番出口)徒歩8分、赤坂見附駅(出口1)徒歩8分で利用も可能です。

