赤坂GHSビルのテナント募集中区画
| 階数 | 面積 | 賃料(共益費含む) | 保証金 | 入居可能日 | 検討リスト | 詳細 |
|---|---|---|---|---|---|---|
| 2 | 55.73坪 | 応相談(応相談) | 応相談 | 即 |
…新着物件
アクセス
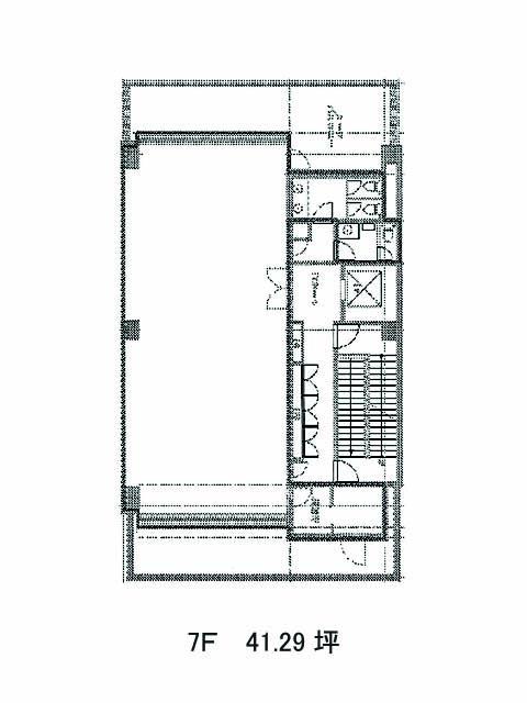
赤坂GHSビルの物件情報
赤坂GHSビル(港区赤坂)は溜池山王駅(11番出口)から徒歩4分の賃貸オフィスです。白を基調とした外観にガラス面を多用した明るいイメージの物件です。すっきりとした佇まいは清潔感があり、来訪者への印象にも好影響を与えてくれます。エントランスホールにはベンチが設置されており、ちょっとした来客の待機や打ち合わせにも使える配慮が感じられます。
基準階は約58坪のワンフロア・ワンテナント設計。水回りも室内に設けられており、レイアウトの自由度と機能性のバランスが取れた構成です。外からの視線が入りにくい奥まった立地でありながら、最寄駅からのアクセスにも優れており、「静かな環境で落ち着いて仕事がしたい」そんな企業にとっては魅力的な条件がそろっています。赤坂GHSビルは溜池山王駅(11番出口)の他に赤坂駅(2番出口)徒歩5分、国会議事堂前駅(5番出口)徒歩7分で利用も可能です。

