5階は現在募集がありません
1フロア募集区画あり

赤坂GHSビル 5階

前の写真 次の写真

物件概要

物件番号

133-00976-22

物件名

赤坂GHSビル

所在地

面積

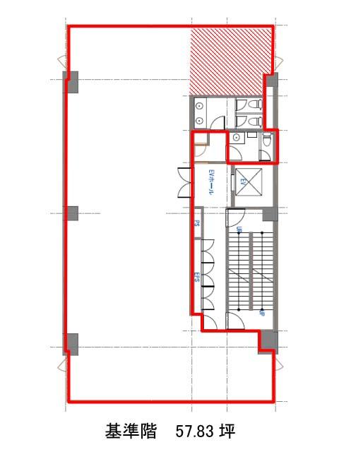
57.83坪

賃料(共益費含)


入居日

募集終了

保証金

礼金

更新料

償却費

竣工

1996年3月

構造

SRC

規模

地上7階/地下1階

トイレ

男女別

空調

エレベーター

セキュリティ

駐車場

耐震

新耐震基準

基準階天井高

2600mm

空室延床面積

55.73坪

最寄駅

情報更新日

2026/03/30

赤坂GHSビルのテナント募集中区画

階数 面積 賃料(共益費含む) 保証金 入居可能日 検討リスト 詳細
2 55.73坪 応相談(応相談) 応相談 2026年9月上旬
…新着物件

赤坂GHSビルのアクセス

赤坂GHSビルの物件情報

赤坂GHSビル(港区赤坂)は溜池山王駅(11番出口)から徒歩4分の賃貸オフィスです。
白を基調とした外観にガラス面を多用した明るいイメージの物件です。すっきりとした佇まいは清潔感があり、来訪者への印象にも好影響を与えてくれます。エントランスホールにはベンチが設置されており、ちょっとした来客の待機や打ち合わせにも使える配慮が感じられます。
基準階は約58坪のワンフロア・ワンテナント設計。水回りも室内に設けられており、レイアウトの自由度と機能性のバランスが取れた構成です。外からの視線が入りにくい奥まった立地でありながら、最寄駅からのアクセスにも優れており、「静かな環境で落ち着いて仕事がしたい」そんな企業にとっては魅力的な条件がそろっています。
赤坂GHSビルは溜池山王駅(11番出口)の他に赤坂駅(2番出口)徒歩5分、国会議事堂前駅(5番出口)徒歩7分で利用も可能です。

近隣のエリア・駅から探す