5階 5北は現在募集がありません
6フロア募集区画あり
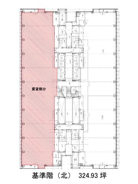
トレードピアお台場 5階 5北
物件概要
物件番号
134-00001-110物件名
トレードピアお台場所在地
- 東京都港区台場2-3-1
- アクセスマップ
面積
324.92坪賃料(共益費含)
−入居日
募集終了保証金
−礼金
−更新料
−償却費
−竣工
2001年2月構造
S造規模
地上23階/地下2階トイレ
男女別空調
セントラルエレベーター
有セキュリティ
有駐車場
有耐震
新耐震基準基準階天井高
2700mm空室延床面積
469.55坪最寄駅
- お台場海浜公園駅
- 徒歩5分
- 東京テレポート駅
- 徒歩5分
- 台場駅
- 徒歩8分
- 青海駅
- 徒歩11分
- 東京国際クルーズターミナル駅
- 徒歩13分
情報更新日
2026/01/23トレードピアお台場のテナント募集中区画
| 階数 | 面積 | 賃料(共益費含む) | 保証金 | 入居可能日 | 検討リスト | 詳細 |
|---|---|---|---|---|---|---|
| 7 | 55.82坪 | 応相談(応相談) | 応相談 | 即 | ||
| 10 | 111.66坪 | 応相談(応相談) | 応相談 | 即 | ||
| 10 | 55.83坪 | 応相談(応相談) | 応相談 | 相談 | ||
| 10 | 55.83坪 | 応相談(応相談) | 応相談 | 相談 | ||
| 16 | 84.29坪 | 応相談(応相談) | 応相談 | 即 | ||
| 22 | 106.12坪 | 応相談(応相談) | 応相談 | 即 |
…新着物件
アクセス
トレードピアお台場の物件情報
トレードピアお台場(港区台場)はお台場海浜公園駅(南口)から徒歩5分の賃貸オフィスです。2001年竣工の物件ということもあり、建物自体が綺麗です。エントランスホールやエレベーターホールは清潔感があり、とても広々とした空間となっております。地上23階建て、基準階約635坪の大規模な室内は、広々とした長方形の整形オフィスのため、効率の良いレイアウトが組めそうです。窓からは東京湾岸エリアの開放的な景色が開けています。ビル内にはOAフロアやテナント専用会議室が備えられており、トイレは男女別となっております。また周辺にはコンビニや飲食店などが複数あり、都心へのアクセスも良好な利便性の高い立地です。トレードピアお台場はお台場海浜公園駅(南口)の他に東京テレポート駅(B番出口)徒歩5分、台場駅(南口)徒歩8分で利用も可能です。

