ACN汐留ビルのテナント募集中区画
| 階数 | 面積 | 賃料(共益費含む) | 保証金 | 入居可能日 | 検討リスト | 詳細 |
|---|---|---|---|---|---|---|
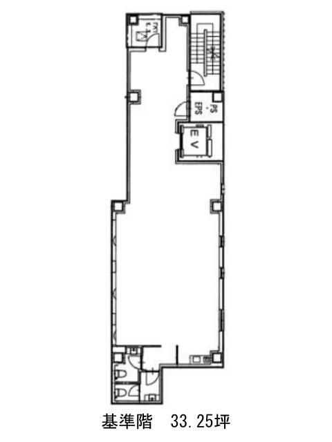
| 7 | 33.25坪 | 応相談(応相談) | 応相談 | 2026年2月中旬 | ||
| 10 | 33.25坪 | 応相談(応相談) | 応相談 | 相談 |
…新着物件
アクセス
ACN汐留ビルの物件情報
ACN汐留ビル(港区東新橋)は新橋駅(A1番出口)から徒歩5分の賃貸オフィスです。ACN汐留ビルは新橋駅(A1番出口)の他に汐留駅(8番出口)徒歩5分、御成門駅(A4番出口)徒歩9分で利用も可能です。

