6階は現在募集がありません
2フロア募集区画あり

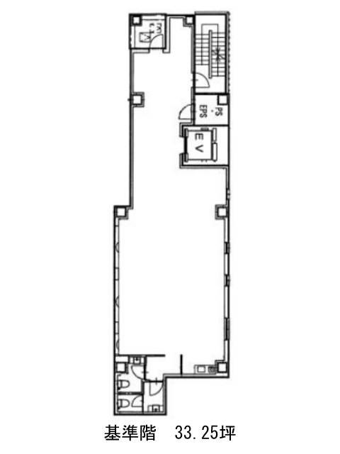
ACN汐留ビル 6階

前の写真 次の写真

物件概要

物件番号

135-00107-6

物件名

ACN汐留ビル

所在地

面積

33.25坪

賃料(共益費含)


入居日

募集終了

保証金

礼金

更新料

償却費

竣工

2022年4月

構造

S造

規模

地上10階

トイレ

男女別

空調

個別空調

エレベーター

セキュリティ

駐車場

耐震

新耐震基準

基準階天井高

2550mm

空室延床面積

66.50坪

最寄駅

情報更新日

2026/03/23

ACN汐留ビルのテナント募集中区画

階数 面積 賃料(共益費含む) 保証金 入居可能日 検討リスト 詳細
5 33.25坪 応相談(応相談) 応相談 2026年7月下旬
7 33.25坪 応相談(応相談) 応相談
…新着物件

ACN汐留ビルのアクセス

ACN汐留ビルの物件情報

ACN汐留ビル(港区東新橋)は新橋駅(A1番出口)から徒歩5分の賃貸オフィスです。
ACN汐留ビルは新橋駅(A1番出口)の他に汐留駅(8番出口)徒歩5分、御成門駅(A4番出口)徒歩9分で利用も可能です。

近隣のエリア・駅から探す