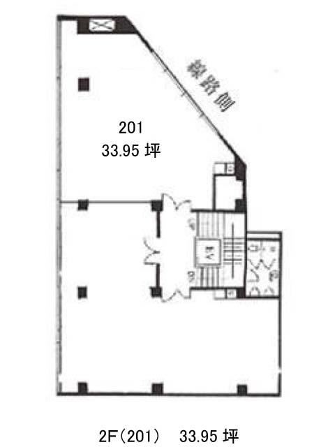
2階 201は現在募集がありません
久田ビル 2階 201
物件概要
久田ビルのテナント募集中区画
現在、空室がございません。
アクセス
久田ビルの物件情報
久田ビル(港区東新橋)は新橋駅(2番出口)から徒歩3分の賃貸オフィスです。接道面が大きく、角地ということもあり存在感の強い物件。築年数に関わらずしっかりとした佇まいです。
1フロアは最大70坪強の規模。フロアや募集時期によって分割区画がございますので、詳細はお問合せくださいませ。男女別トイレは室外に設置されています。
日本テレビタワー目の前の立地ですので、制作会社様などにもおすすめの物件です。新橋駅に程近いことから、都内各所へ動き回りやすい環境も魅力の一つと言えます。久田ビルは新橋駅(2番出口)の他に汐留駅(出口2)徒歩3分、内幸町駅(A2番出口)徒歩11分で利用も可能です。

