3階は現在募集がありません
1フロア募集区画あり

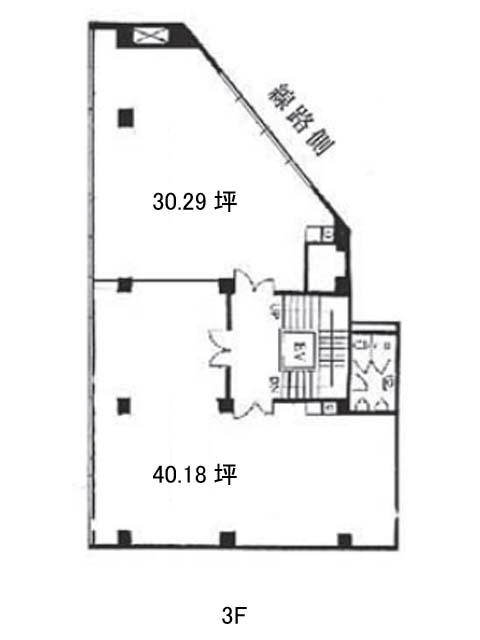
久田ビル 3階

前の写真 次の写真

物件概要

物件番号

135-00036-50

物件名

久田ビル

所在地

面積

30.29坪

賃料(共益費含)


入居日

募集終了

保証金

礼金

更新料

償却費

竣工

1964年4月

構造

SRC

規模

地上8階/地下1階

トイレ

男女別

空調

個別空調

エレベーター

セキュリティ

駐車場

耐震

旧耐震基準

基準階天井高

空室延床面積

54.77坪

最寄駅

情報更新日

2026/03/27

久田ビルのテナント募集中区画

階数 面積 賃料(共益費含む) 保証金 入居可能日 検討リスト 詳細
2 54.77坪 1,600,040円/月(29,213円/坪) 1,745万円
…新着物件

久田ビルのアクセス

久田ビルの物件情報

久田ビル(港区東新橋)は新橋駅(2番出口)から徒歩3分の賃貸オフィスです。
接道面が大きく、角地ということもあり存在感の強い物件。築年数に関わらずしっかりとした佇まいです。
1フロアは最大70坪強の規模。フロアや募集時期によって分割区画がございますので、詳細はお問合せくださいませ。男女別トイレは室外に設置されています。
日本テレビタワー目の前の立地ですので、制作会社様などにもおすすめの物件です。新橋駅に程近いことから、都内各所へ動き回りやすい環境も魅力の一つと言えます。
久田ビルは新橋駅(2番出口)の他に汐留駅(出口2)徒歩3分、内幸町駅(A2番出口)徒歩11分で利用も可能です。

近隣のエリア・駅から探す