今朝ビルのテナント募集中区画
| 階数 | 面積 | 賃料(共益費含む) | 保証金 | 入居可能日 | 検討リスト | 詳細 |
|---|---|---|---|---|---|---|
| 1 | 67.48坪 | 応相談(応相談) | 応相談 | 即 |
…新着物件
今朝ビルのアクセス
今朝ビルの物件情報
今朝ビル(港区東新橋)は新橋駅(2番出口)から徒歩2分の賃貸オフィスです。新橋駅至近、第一京浜に面したオフィスビルです。地上9階建て。外観はチャコールグレーのパネル張りでシンプルで飽きのこないデザインです。
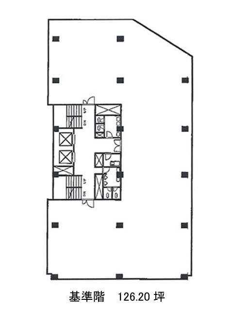
1フロアは最大約130坪の規模。募集時期やフロアによって分割貸しを行っている場合がございます。男女別トイレと給湯室の水回りは全てエレベーターホール側(室外)に集約されています。貸室は共用部分をコの字型に囲っているかたちです。セキュリティは機械警備を採用。当ビルは2005年に外装、2014年に耐震・トイレ・エントランスのリニューアル工事済みです。
充実のオフィス設備と、利便性に優れた立地が魅力の物件です。都内各所へも動き回りやすいため、外出の多い企業様にもおすすめさせて頂きたい物件です。今朝ビルは新橋駅(2番出口)の他に汐留駅(3番出口)徒歩3分、内幸町駅(A2番出口)徒歩8分で利用も可能です。

