8階は現在募集がありません
1フロア募集区画あり

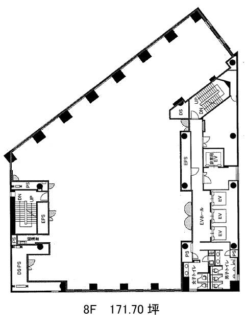
ルオーゴ汐留 8階

前の写真 次の写真

物件概要

物件番号

135-00096-100

物件名

ルオーゴ汐留

所在地

面積

171.70坪

賃料(共益費含)


入居日

募集終了

保証金

礼金

更新料

償却費

竣工

2004年7月

構造

SRC

規模

地上11階/地下1階

トイレ

男女別

空調

個別空調

エレベーター

セキュリティ

駐車場

耐震

新耐震基準

基準階天井高

2600mm

空室延床面積

149.02坪

最寄駅

情報更新日

2026/01/09

ルオーゴ汐留のテナント募集中区画

階数 面積 賃料(共益費含む) 保証金 入居可能日 検討リスト 詳細
6 149.02坪 応相談(応相談) 応相談
…新着物件

アクセス

ルオーゴ汐留の物件情報

ルオーゴ汐留(港区東新橋)は汐留駅(8番出口)から徒歩4分の賃貸オフィスです。
地上10階建てで2004年竣工の物件ということもあり、上層階からの眺望は良好で、建物自体も比較的綺麗です。2011年にリニューアル工事を済ませています。外観は全体的にベージュ系の色合いをしており、落ち着きがありながら上層と下層でサイズの異なる石張りが洗練された印象を与えるデザインです。エントランスホールやエレベーターホールは広々としており、開放感と清潔感を感じられます。また周辺にはコンビニや飲食店、銀行などが複数あるためとても利便性が高いです。ビル内には機械警備、機械式駐車場、OAフロアが備えられており、トイレは男女別となっております。
ルオーゴ汐留は汐留駅(8番出口)の他に新橋駅(A1番出口)徒歩5分、御成門駅(A4番出口)徒歩11分で利用も可能です。

近隣のエリア・駅から探す