地下1階は現在募集がありません
1フロア募集区画あり

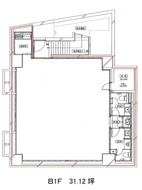
アドバンテック南青山ビル 地下1階

前の写真 次の写真

物件概要

物件番号

137-00117-81

物件名

アドバンテック南青山ビル

所在地

面積

31.12坪

賃料(共益費含)


入居日

募集終了

保証金

礼金

更新料

償却費

竣工

1978年9月

構造

SRC

規模

地上10階/地下1階

トイレ

男女別

空調

個別空調

エレベーター

セキュリティ

駐車場

耐震

耐震補強済み

基準階天井高

2600mm

空室延床面積

30.55坪

最寄駅

情報更新日

2026/03/10

アドバンテック南青山ビルのテナント募集中区画

階数 面積 賃料(共益費含む) 保証金 入居可能日 検討リスト 詳細
3 30.55坪 604,890円/月(19,800円/坪) 274万円
…新着物件

アドバンテック南青山ビルのアクセス

アドバンテック南青山ビルの物件情報

アドバンテック南青山ビル(港区南青山)は外苑前駅(4a番出口)から徒歩2分の賃貸オフィスです。
アドバンテック南青山ビルは外苑前駅(4a番出口)の他に青山一丁目駅(1番出口)徒歩6分、表参道駅(A4番出口)徒歩13分で利用も可能です。

近隣のエリア・駅から探す