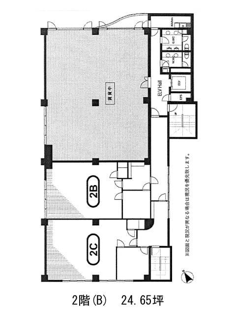
南青山第一韮澤ビル 2階 B
物件概要
南青山第一韮澤ビルのテナント募集中区画
| 階数 | 面積 | 賃料(共益費含む) | 保証金 | 入居可能日 | 検討リスト | 詳細 |
|---|---|---|---|---|---|---|
| 2 | 24.65坪 | 677,875円/月(27,500円/坪) | 応相談 | 即 | ||
| 2 | 28.74坪 | 790,350円/月(27,500円/坪) | 応相談 | 即 |
…新着物件
アクセス
南青山第一韮澤ビルの物件情報
南青山第一韮澤ビル(港区南青山)は外苑前駅(1a番出口)から徒歩7分の賃貸オフィスです。表参道駅から徒歩圏、青山通りから一本入った落ち着いたエリアに建つ本物件。外観は重厚感のある石造りで、訪れる人に堅実な印象を与えてくれます。全体的にすっきりとした佇まいで、業種を問わず受け入れられやすいデザインです。
各フロアは約111坪と広々しており、分割での募集実績もあります。室内にはいくつか柱があるので、レイアウトには工夫が必要ですが、視線が分散することで自然なゾーニングがしやすいというメリットも。執務エリアとは別にトイレ・給湯室がまとめられているため、来客対応や動線設計にも配慮されています。
機械警備や駐車場の設備も整っており、日常の安心感や車でのアクセスにも対応可能です。南青山第一韮澤ビルは外苑前駅(1a番出口)の他に表参道駅(A4番出口)徒歩8分、乃木坂駅(5番出口)徒歩12分で利用も可能です。

