表参道グランビルのテナント募集中区画
| 階数 | 面積 | 賃料(共益費含む) | 保証金 | 入居可能日 | 検討リスト | 詳細 |
|---|---|---|---|---|---|---|
| 4 | 316.56坪 | 応相談(応相談) | 応相談 | 2026年9月中旬 | ||
| 5 | 316.56坪 | 応相談(応相談) | 応相談 | 2026年9月中旬 |
…新着物件
アクセス
表参道グランビルの物件情報
表参道グランビル(港区南青山)は表参道駅(A4番出口)から徒歩5分の賃貸オフィスです。表参道エリアに堂々と構える本物件は、青山通り沿いの視認性の高いロケーションが魅力。ガラス張りのファサードと開放感あるエントランスが、訪れる人に洗練された印象を与えます。
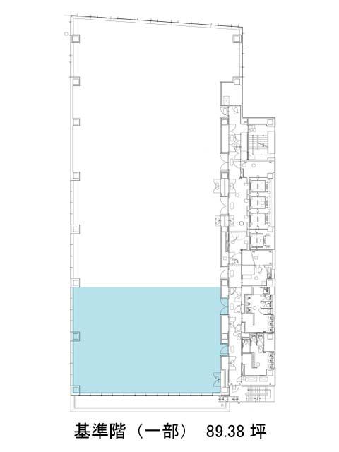
基準階は約316坪の広さを誇り、分割実績もあるため、テナントの多様なレイアウトニーズに対応可能です。
貸室内は整形かつ無柱で、自由度の高いレイアウトが実現しやすい構造。天井高は2,800mmとゆとりがあり、空間に奥行きを感じさせる仕様です。さらにOAフロアも標準装備されており、ICT設備を整えたい企業にも安心のインフラ環境が整っています。
共用部にはEVが4基設置されており、朝夕の移動もスムーズ。加えて機械警備・駐車場も備わっており、働く人と訪れる人の双方にとって快適なオフィス環境を実現しています。ブランド発信の拠点にもふさわしい、品格ある一棟です。表参道グランビルは表参道駅(A4番出口)の他に外苑前駅(1a番出口)徒歩6分、明治神宮前駅(出口1)徒歩14分で利用も可能です。

