3階は現在募集がありません
南麻布TMDビル 3階
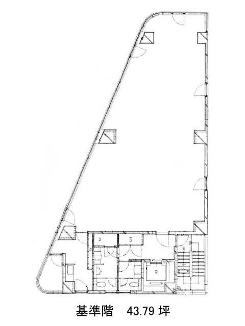
物件概要
南麻布TMDビルのテナント募集中区画
現在、空室がございません。
アクセス
南麻布TMDビルの物件情報
南麻布TMDビル(港区南麻布)は白金高輪駅(4番出口)から徒歩5分の賃貸オフィスです。1991年竣工の地上9階建てのオフィスビルです。外観は白のタイルとガラスウォールで構成されたシンプルな作りとなっております。エレベーター1基設置。貸室内にはOAフロア、個別空調完備、トイレも男女別となっているため設備面は充実しております。駐車場も併設しており、社用車を使う場合も便利です。またセキュリティは機械警備を導入していて、耐震性も新耐震基準であるため、安心です。周辺にはコンビニや飲食店、銀行などが複数あるためとても利便性が高いです。南麻布TMDビルは白金高輪駅(4番出口)の他に麻布十番駅(1番出口)徒歩11分、泉岳寺駅(A3番出口)徒歩14分で利用も可能です。

