小池ビル 2階新着
物件概要
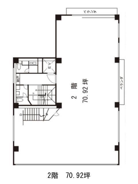
小池ビルのテナント募集中区画
| 階数 | 面積 | 賃料(共益費含む) | 保証金 | 入居可能日 | 検討リスト | 詳細 |
|---|---|---|---|---|---|---|
| 1 | 46.23坪 | 915,354円/月(19,800円/坪) | 471万円 | 2026年6月上旬 | ||
| 1 | 20.07坪 | 397,386円/月(19,800円/坪) | 204万円 | 相談 | ||
| 2 | 70.92坪 | 1,404,216円/月(19,800円/坪) | 723万円 | 2026年6月上旬 |
…新着物件
小池ビルのアクセス
小池ビルの物件情報
小池ビル(港区南麻布)は麻布十番駅(1番出口)から徒歩5分の賃貸オフィスです。小池ビルは麻布十番駅(1番出口)の他に白金高輪駅(4番出口)徒歩13分で利用も可能です。

