3階は現在募集がありません
白金台ビル 3階
物件概要
白金台ビルのテナント募集中区画
現在、空室がございません。
アクセス
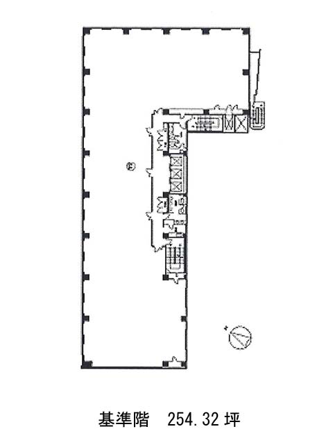
白金台ビルの物件情報
白金台ビル(港区白金台)は白金台駅(2番出口)から徒歩2分の賃貸オフィスです。外観は全体的に重厚感がある色合いで、建物自体が大きいため、存在感があります。エントランスホールやエレベーターホールは清潔感があり、落ち着いた空間となっております。ビル内にはOAフロアが備えられており、トイレは男女別、セキュリティは機械警備を導入しており、耐震性も新耐震基準であるため、安心です。また駐車場を完備してあるため、車の利用もしやすい環境となっております。また周辺にはコンビニや飲食店などがあるため、ランチも楽しめるでしょう。白金台ビルは白金台駅(2番出口)の他に白金高輪駅(1番出口)徒歩11分、高輪台駅(A2番出口)徒歩13分で利用も可能です。

